SERVICES

At Nairobi Kitchen Care (NKC), we help businesses operate efficiently and professionally. Since 1980, we have supported restaurants, hotels, supermarkets, butcheries, and bakeries across East Africa. Our team understands the challenges of designing, equipping, and maintaining commercial kitchens, supermarket butcheries, and bakery operations. That is why we provide equipment supply, space planning, and technical support—all in one place.

KITCHEN DESIGN

CUSTOM MANUFACTURING

SUPPLY & DELIVERY

INSTALLATION, COMMISSIONING & TRAINING

MAINTENANCE & REPAIRS

TURNKEY PROJECT MANAGEMENT

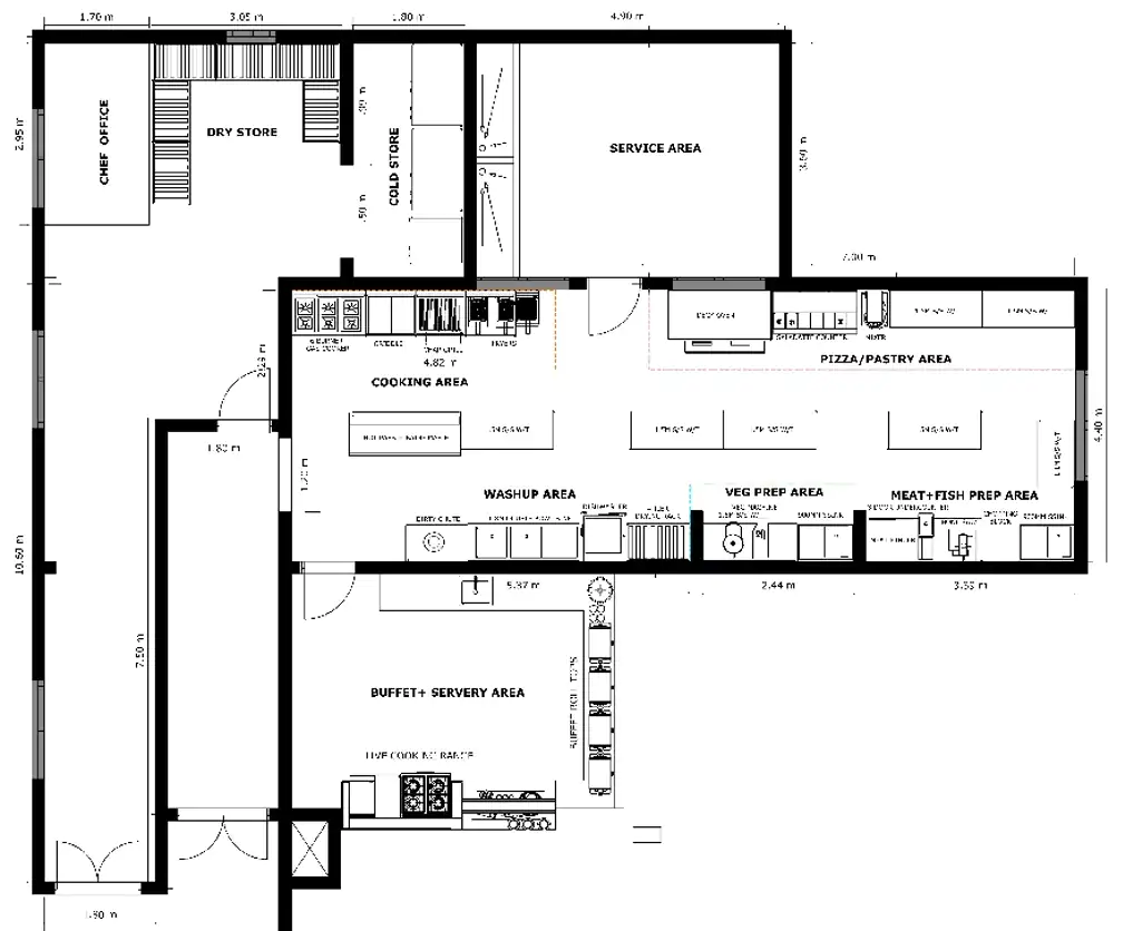
Complete Kitchen Design and Installation

Commercial Kitchen Design & Installation by Nairobi Kitchen Care (NKC)

Every successful kitchen begins with a well-thought-out plan. Our design team creates efficient floor plans and layout drawings that maximize space and improve workflow. Using detailed CAD layouts, we help you clearly visualize your kitchen setup before installation—making decision-making easier and helping prevent costly mistakes.
Once the design is approved, our skilled technicians handle the full installation process. From cooking equipment to refrigeration systems, every unit is carefully positioned, installed, and tested. We ensure everything operates smoothly from day one, giving you the confidence to start operations without delays.

Custom FABRICATION

Custom Manufacturing Service from Nairobi Kitchen Care Kenya

Sometimes standard equipment is not enough. That is why NKC runs a dedicated fabrication workshop where we design and fabricate custom stainless-steel equipment to suit your exact needs. From worktables to complete stainless steel setups, our solutions are built for efficiency and durability.

Fabricating in-house allows us to control quality, deliver faster, and reduce costs compared to imported custom items. Leading hotels, supermarkets, and food chains across East Africa trust NKC for reliable locally fabricated solutions

NEED HELP ON YOUR NEXT PROJECT?

Our project services team guides you through every stage of your commercial kitchen, bakery, butchery, or supermarket setup. We prepare detailed layouts, fabricate and supply specialized catering and refrigeration equipment, and manage delivery nationwide.

Our technicians also handle commissioning, and staff training across the country—ensuring your operations run smoothly from day one.

Installation, Commissioning, and Training

Professional technicians installing and commissioning kitchen equipment with staff training

Equipment alone is not enough. It must be installed and commissioned correctly. Our technicians set up each system, run performance tests, and adjust for maximum efficiency.

We also provide training for your staff. They learn how to use equipment safely and maintain it daily. This reduces downtime and protects your investment. When your team knows the right way to operate machines, your kitchen runs smoother.

Maintenance and Repairs

NKC service technicians performing maintenance and repairs on commercial kitchen equipment

A busy kitchen cannot afford downtime. NKC offers the widest spare parts stock in the region. This means repairs are fast and reliable. Our service team is available to solve issues quickly, keeping your business running.

We also offer preventive maintenance. Regular check-ups reduce breakdowns and extend the life of your equipment. With NKC by your side, you spend less time worrying about repairs and more time serving customers. 

Turnkey Project Management

Some clients need more than equipment—they need a partner to deliver a complete solution. NKC offers turnkey project management for commercial kitchens, bakeries, butcheries, and supermarket operations. From the initial concept to final handover, we manage the entire process.

We coordinate design, equipment supply, testing, and staff training, providing you with a single point of contact that saves time and reduces complexity. Many large projects across East Africa trust NKC to deliver solutions that meet international standards.

Complete turnkey kitchen project management from design to final handover

Wide Range of Equipment

NKC supplies every part of a professional kitchen. Our catalog includes:

Because we cover so many categories, clients can source everything from one supplier. This makes project planning simple and reliable.

NKC showroom on Mombasa Road in Nairobi showcasing 45 years of kitchen expertise

Why Choose NKC

For over 45 years, NKC has combined experience, reliability, and innovation. Our location on Mombasa Road in Nairobi makes us easy to reach. More importantly, our long track record shows that we are here for the long term.

We are not just a supplier. We are a partner who cares about your success. From a single oven to a full commercial kitchen, NKC delivers solutions you can trust.

Contact us at 0725 351 079 or info@nkc.co.ke to begin your journey toward kitchen excellence.